Maison
522.000 €
Rue Maghin 63, Liège 4000
Manager : Carla Plescia
- 6 chambres
- 4 salles de bain
- ~286 m2 surface totale
- ~255 m2 surface habitable
Description
EASY Estate a le plaisir de vous présenter cet immeuble de rapport à vendre, idéalement situé dans le quartier Saint-Léonard, en pleine redynamisation et à proximité du centre-ville de Liège.
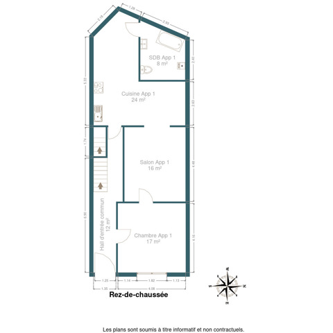
L’immeuble offre une superficie habitable de 255 m² et se compose de trois appartements d’une chambre ainsi que de trois kots. Chaque appartement dispose de sa propre cuisine et salle de bain privative, tandis que les kots partagent une cuisine et une salle de bain communes.
L’ensemble comprend 6 chambres offrant des espaces de vie confortables et bien pensés pour ses occupants.
Un bien idéal pour un investissement locatif sûr et rentable, avec des revenus immédiats et un fort potentiel dans un quartier en plein développement.
Appartement RDC : PEB C ; 20251109002298 ; E spec : 213 kWh/m².an ; E tot : 17 271 kWh/an
Kots : PEB C ; 20251109002340 ; E spec : 177 kWh/m².an ; E tot : 9 324 kWh/an
Appartement 2ème étage : PEB C ; 20251109002588 ; E spec : 198 kWh/m².an ; E tot : 11 223 kWh/an
Appartement 3ème étage : PEB D ; 20251109002680 ; E spec : 340 kWh/m².an ; E tot : 19 814 kWh/an.
Intéressé ? N’hésitez pas à nous contacter afin d’effectuer une visite.
L’immeuble offre une superficie habitable de 255 m² et se compose de trois appartements d’une chambre ainsi que de trois kots. Chaque appartement dispose de sa propre cuisine et salle de bain privative, tandis que les kots partagent une cuisine et une salle de bain communes.
L’ensemble comprend 6 chambres offrant des espaces de vie confortables et bien pensés pour ses occupants.
Un bien idéal pour un investissement locatif sûr et rentable, avec des revenus immédiats et un fort potentiel dans un quartier en plein développement.
Appartement RDC : PEB C ; 20251109002298 ; E spec : 213 kWh/m².an ; E tot : 17 271 kWh/an
Kots : PEB C ; 20251109002340 ; E spec : 177 kWh/m².an ; E tot : 9 324 kWh/an
Appartement 2ème étage : PEB C ; 20251109002588 ; E spec : 198 kWh/m².an ; E tot : 11 223 kWh/an
Appartement 3ème étage : PEB D ; 20251109002680 ; E spec : 340 kWh/m².an ; E tot : 19 814 kWh/an.
Intéressé ? N’hésitez pas à nous contacter afin d’effectuer une visite.
Détails de la propriété
Informations générales
- Chambre(s): 6
- Salle(s) de bain: 4
- Cave: Oui
- Superficie habitable: 255m2
- Superficie du terrain: 95m2
- Superficie brute: 286m2
- Superficie nette: 255m2
Informations énergétiques
- PEB:

- Performance énergie: 213-213 Kwh/m2/an
- Code unique: 20251109002298
- PEB valide jusque: 11/09/2035 00:00
Intérieur
- cuisine: oui
- chauffage (ind/coll): individuel
- double vitrage: oui
- chauffage: gaz
Documents
Renseignements
et visite
« * » indique les champs nécessaires




























































