Description
Maison 4 façades avec jardin – Dinant
235m² habitables – 3 chambres – Terrain de 3.985 m² – Année 1991
Easy Estate a le plaisir de vous présenter cette maison 4 façades située dans un quartier paisible et verdoyant de Loyers, à deux pas de Dinant, qui vous séduira par ses volumes généreux, sa luminosité naturelle et son confort de vie au quotidien.
Dès l’entrée, vous serez accueilli par une atmosphère chaleureuse et une belle clarté. Le vaste séjour s’ouvre sur une salle à manger conviviale, prolongée par une cuisine équipée avec accès direct à la terrasse et au jardin orienté sud-ouest, idéal pour profiter des beaux jours en toute intimité.
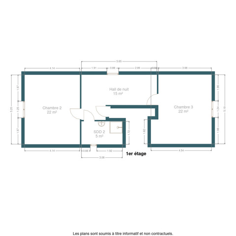
Le rez-de-chaussée dispose de deux chambres spacieuses, parfaites pour une chambre parentale, un bureau ou des invités. À l’étage, vous trouverez deux autres chambres ainsi que deux salles de bains.
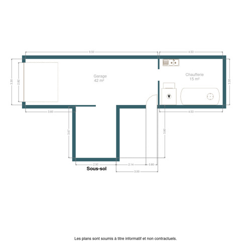
Le bien bénéficie également de deux garages, deux emplacements de parking extérieurs, ainsi que deux caves offrant de belles possibilités de rangement. Toute la surface est construite sur des caves et vides ventilés, assurant un potentiel d’aménagement supplémentaire.
Le terrain de près de 4.000 m² offre un cadre de vie exceptionnel, entre tranquillité, espace et nature.
Caractéristiques techniques:
Superficie habitable : 310 m²
Terrain : 3.985 m² (jardin : ± 3.670 m²)
3 chambres / 2 salles d’eau
PEB : C
Année de construction : 1991
Caves sur toute la superficie
Emplacements de parking : 4 (2 extérieurs + 2 garages)
Visite virtuelle
Informations
- Chambre(s): 3
- Salle(s) de bain: 3
- Toilette(s): 1
- Garage(s): 1
- Place(s) de parking: 3
- Terrasse: Oui
- Jardin: Oui
- Superficie habitable: 235m2
- Superficie du living: 33.16m2
- Superficie du terrain: 169m2
- Superficie du bureau: 8.68m2
- PEB: C
- Code unique: 20250518003687
- Performance énergie: 230 Kwh/m2/an
- PEB valide jusque: Non renseigné
Intérieur
- cuisine: oui
- double vitrage: oui
- chauffage: mazout (chauf. centr.)
Extérieur
Renseignements
et visite
« * » indique les champs nécessaires

















































